Skip to main content

Littledown Drive, BH7 - £1,100,000

£1,100,000

Guide Price
Littledown Drive, BH7

5 Bedrooms

3 Bathrooms

Key Features

  • Generous 5/6 bedroom detached family home
  • Three floors of beautifully presented living space
  • Spacious open-plan living/dining room with south-facing bi-folding doors
  • Bespoke kitchen with Neff ovens, Quooker tap, and Fisher & Paykel dishwasher drawers
  • Separate utility room, larder, and additional storage
  • Flexible reception room ideal as home office, studio or annexe space
  • Primary suite with dressing room, fitted wardrobes and luxurious en suite
  • Heated swimming pool and private, mainly lawned garden
  • Triple garage incorporating kitchenette and shower room, perfect for guests or multigenerational living

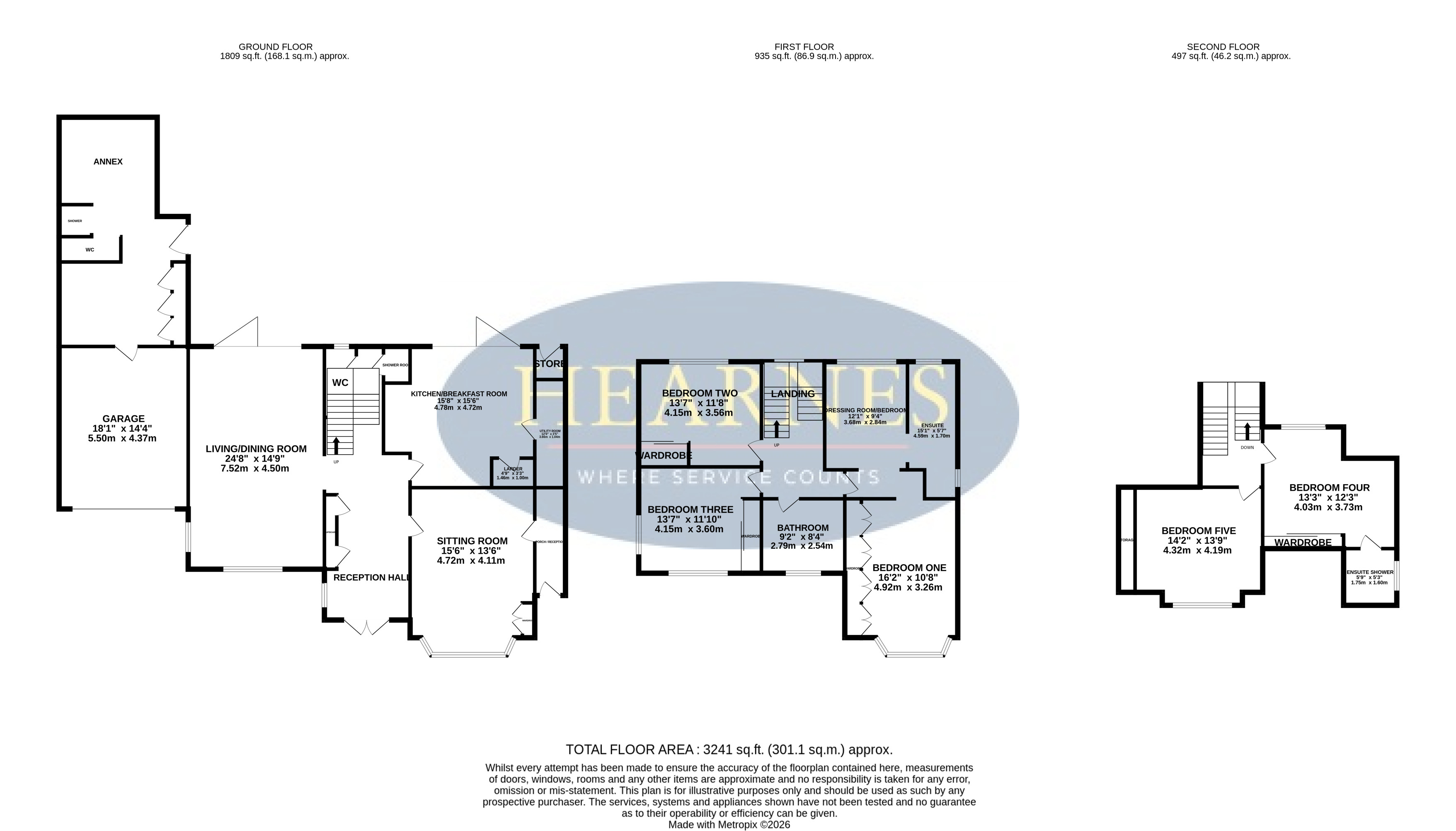
A TRULY EXCEPTIONAL detached family home situated over THREE FLOORS with FIVE/SIX DOUBLE BEDROOMS in the desirable location of LITTLEDOWN. The property benefits from BESPOKE FITTED KTICHEN and BATHROOMS, STUNNING PRIMARY SUITE with dressing room and ensuite, TWO SPACIOUS reception rooms, HEATED POOL, LARGE PRIVATE rear garden and large garage with ANNEXE.

Property Description

A simply stunning 5/6 bedroom detached character home arranged over three floors, situated in the highly sought-after location of Littledown. Ideally positioned within easy reach of JP Morgan, Bournemouth Hospital, the town centre and award-winning sandy beaches, the property occupies a generously sized private plot and further benefits from annexe potential, a heated swimming pool and a substantial triple garage incorporating a shower room and kitchenette, creating an ideal self-contained annexe option.

Upon entering, a bright and impressive hallway leads into a spacious open-plan living/dining room, featuring anthracite bi-folding doors opening onto the south-facing rear garden. A separate reception room with its own private access provides excellent flexibility, ideal as a home office, studio or potential annexe space. The stunning bespoke kitchen is fitted with an extensive range of floor and wall-mounted units, complemented by contrasting work surfaces and a central island. High-end appliances include Neff Slide & Hide ovens, a Quooker boiling and purified water tap, and Fisher & Paykel dishwasher drawers. The kitchen flows seamlessly into a separate utility room and larder, while bi-folding doors overlook and provide direct access to the heated swimming pool and garden. The ground floor is completed by additional storage and a separate WC.

The first-floor landing, enhanced by bespoke oak staircases and glass balustrades, leads to three generous double bedrooms, all benefiting from built-in wardrobes. The impressive primary suite features bespoke fitted wardrobes, a dedicated dressing room and a luxurious en suite bathroom. A stylish family bathroom, complete with a walk-in shower and freestanding bath, serves the remaining bedrooms on this floor.

The second floor completes the main house accommodation and offers two further double bedrooms, one of which benefits from a modern en suite shower room.

Externally, the private rear garden enjoys a high degree of seclusion and is mainly laid to lawn, incorporating a fully heated swimming pool. A impressive annexe/ garage is fitted with a kitchenette and shower room, ideal for guests, multigenerational living or home working. An attractive resin surface creates a striking pool surround and entertaining area. To the front, attractive block paving provides ample off-road parking and leads to the large triple garage.

COUNCIL TAX BAND: F EPC RATING: C

AGENTS NOTE: The heating system, mains and appliances have not been tested by Hearnes Estate Agents. Any areas, measurements or distances are approximate. The text, photographs and plans are for guidance only and are not necessarily comprehensive. Whilst reasonable endeavours have been made to ensure that the information given in our sales particulars are as accurate as possible, this information has been provided to us by the seller and is not guaranteed. Any intending buyer should not rely upon the information we have supplied and should satisfy themselves by inspection, searches, enquiries, and survey as to the correctness of each statement before making a financial or legal commitment. We have not checked the legal documentation to verify the legal status, including the lease term and ground rent and escalation of ground rent of the property (where applicable). A buyer must not rely upon the information provided until it has been verified by their own solicitors.

Littledown Drive

1/0

Search for a property