INDEPENDENT ESTATE AGENTS
ESTABLISHED 1996
Looking for someone to give you a call at a time that's convenient for you? Just fill out the quick form below and a member of our team will be in touch.
Your feedback is important to us. Please take the time to submit a review using the form the below.
We'd be delighted to help you with the valuation of your property. Simpy complete the form below and a member of our team will be in touch as soon as possible.
Your login area to manage your saved properties, searches and property alerts
Password reset instructions will be sent to your registered email address.
3 Bedrooms
2 Bathrooms
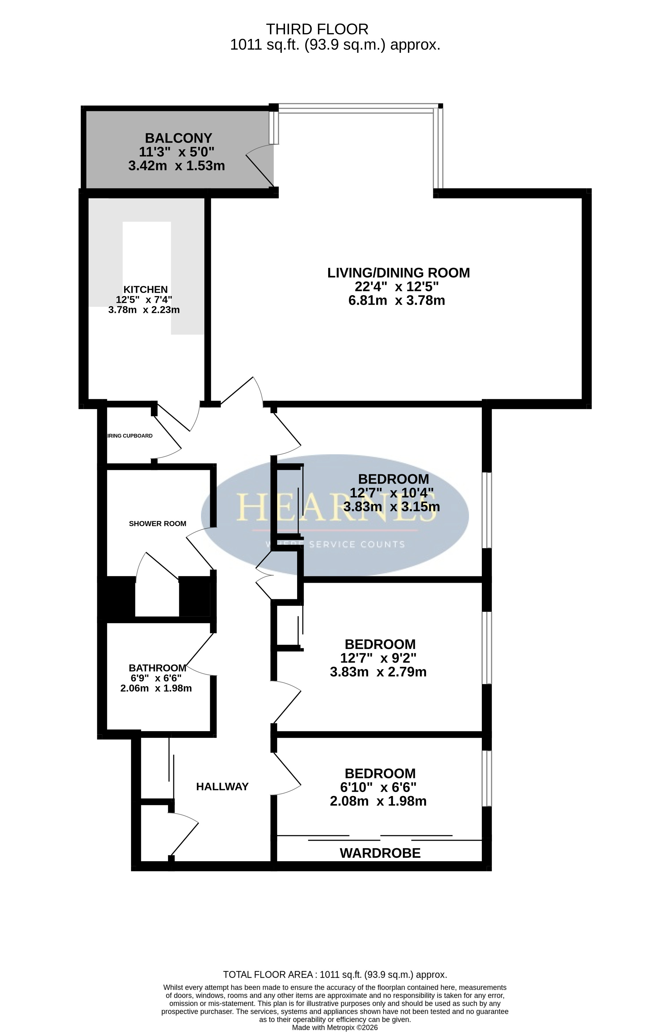
A SPACIOUS THREE BEDROOM third floor EAST CLIFF apartment with BALCONY, LIFT, SECURE PARKING, SHARE OF FREEHOLD. Requires FULL REFURBISHMENT. NO CHAIN.
An impressive three bedroom, third floor apartment situated on Bournemouth’s sought-after East Cliff, within easy reach of the town centre offering a wide range of bars, shops and restaurants. The property features a balcony with a southerly aspect, two bath/shower rooms, an impressive living/dining room, lift access, secure underground parking and a share of freehold. The apartment now requires full refurbishment throughout, presenting an excellent opportunity to modernise and add value in a prime coastal location.
The East Cliff is one of Bournemouth’s most established and well-regarded residential areas, positioned between the town centre and the coastline. It offers easy access to the award-winning sandy beaches, scenic cliff-top walks and Bournemouth Gardens, while remaining convenient for mainline rail links and everyday amenities.
On entering, a central hallway with three useful storage cupboards provides access to all principal accommodation. The living/dining room measures in excess of 22ft and opens onto a balcony with a southerly aspect overlooking mature trees. A separate galley kitchen offers a range of floor and wall mounted units with contrasting work surfaces and space for additional appliances.
All three bedrooms are well-proportioned doubles, each benefitting from fitted storage and overlooking the side aspect of the development. Bedroom three would also lend itself well as a study if required. The accommodation is served by a bathroom and a separate shower room.
The property is conveyed with one secure, underground parking space along with further resident permit parking. The development is situated within beautifully maintained communal gardens.
Share of Freehold - 978 years remaining on the lease
Maintenance: Approximately £850.00 per quarter
Share of freehold - no ground rent
COUNCIL TAX BAND: D EPC: D
AGENTS NOTE: The heating system, mains and appliances have not been tested by Hearnes Estate Agents. Any areas, measurements or distances are approximate. The text, photographs and plans are for guidance only and are not necessarily comprehensive. Whilst reasonable endeavours have been made to ensure that the information given in our sales particulars are as accurate as possible, this information has been provided to us by the seller and is not guaranteed. Any intending buyer should not rely upon the information we have supplied and should satisfy themselves by inspection, searches, enquiries, and survey as to the correctness of each statement before making a financial or legal commitment. We have not checked the legal documentation to verify the legal status, including the lease term and ground rent and escalation of ground rent of the property (where applicable). A buyer must not rely upon the information provided until it has been verified by their own solicitors
Bournemouth Office