Skip to main content

Flat 9 Melton Court, BH13 - £100,000

£100,000

Flat 9 Melton Court, BH13

1 Bedroom

1 Bathroom

Key Features

  • A higher service level of independent living, ran by owners for owners
  • One bedroom flat with generous lounge with a large window to the rear
  • Although the original kitchen, it is spotlessly clean and tidy including integrated oven, electric hob, extractor, fridge/freezer and space for a small breakfast table
  • Bedroom with fitted mirror fronted wardrobes
  • Excellent storage with 3 built in storage cupboards
  • Spacious bathroom with walk in shower, separate bath
  • Gas central heating & double glazing, fitted carpets and curtains
  • Different activities a week including carpet boules, tapestry class, exercise class, bingo, film evenings, bridge evenings, canine caring, prayer group, Desert Island Disc just to mention a few
  • Communal parking & visitor parking, passenger lift and staff on site 24hrs a day
  • Call Hearnes for more information and viewings

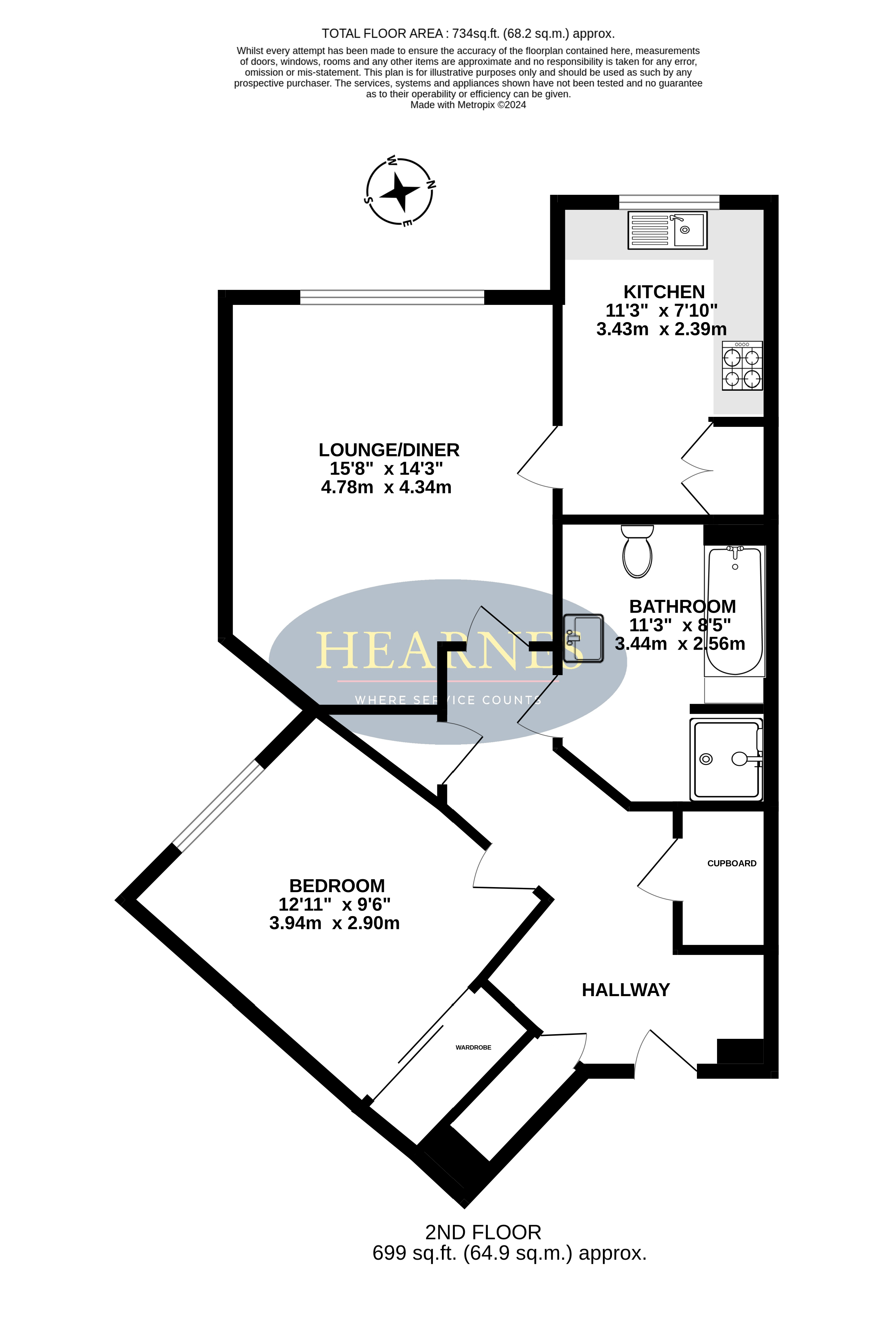
A very generous and spacious one double bedroom, purpose built, first floor retirement apartment for over 65’s, set in the East Wing of this desirable Melton Court Development. This well thought out retirement living complex includes lovely communal gardens, communal lounge, communal dining room which serves lunch 7 days a week and staff on site 24hrs a day. The apartment is located less than 200 metres away from a Tesco Superstore, and less than half a mile away from a Lidl store and Branksome Train Station with direct links to London, with Westbourne shopping area a similar distance in the other direction.

Property Description

A very generous and spacious one double bedroom, purpose built, first floor retirement apartment for over 65’s, set in the East Wing of this desirable Melton Court Development. This well thought out retirement living complex includes lovely communal gardens, communal lounge, communal dining room which serves lunch 7 days a week and staff on site 24hrs a day. The apartment is located less than 200 metres away from a Tesco Superstore, and less than half a mile away from a Lidl store and Branksome Train Station with direct links to London, with Westbourne shopping area a similar distance in the other direction.

• A higher service level of independent living, ran by owners for owners

• Immaculate, spacious one bedroom purpose built first floor apartment in this independent living development for the over 65’s

• Well presented having been recently redecorated and new carpets fitted

• Fabulous kind and community feel to the development

• Flat with generous lounge with a large window to the rear

• Although the original kitchen, it is spotlessly clean and tidy including integrated oven, electric hob, extractor, fridge/freezer and space for a small breakfast table

• Bedroom with fitted mirror fronted wardrobes

• Excellent storage with 3 built in storage cupboards

• Spacious bathroom with walk in shower, separate bath

• No forward chain

• Gas central heating & double glazing, fitted carpets and curtains

• Communal parking & visitor parking, passenger lift and staff on site 24hrs a day. Daily checks and 1.5 hours apartment cleaning a week

• Built in 1996, Melton Court consists of 90 apartments in 2 buildings, with 44 apartments in the ‘East Wing’ and 46 in the ‘West Wing’. There are communal lounges in both blocks along with a team of 38 staff

• Subsidised 3 course lunches are served in the dining room from £11 – £13 7 days a week with waitress service, morning & afternoon teas are also available with no charge

• There are different activities a week including carpet boules, tapestry class, exercise class, bingo, film evenings, bridge evenings, canine caring, prayer group, Desert Island Disc just to mention a few. Various services available to include:

• Communal laundry service (charged at £3.50 for use of machine)

• Ironing service available (at £15.10 an hour)

• Buggy charging available (charged at £5 an hour)

• Handyman charges of £6 per 15 minutes

Just along the road is a large Tesco store and Westbourne is ½ a mile away with its range of local cafes, independent shops, restaurants, and bars. Branksome Train Station is also within ½ a mile and is less than a 2 hour journey to London Waterloo. The gorgeous Branksome Beach is within 1 ½ miles, which is a beautiful walk through Branksome Chine. Bournemouth Town Centre is within 1½ miles and Poole Town Centre is within 3½ miles.

Term of Lease: 97 years remaining

Maintenance Charges: Approximately £900 per month – this includes building insurance & water charges

COUNCIL TAX BAND: E EPC RATE: C

Flat 9 Melton Court Lindsay Road

1/0

Search for a property